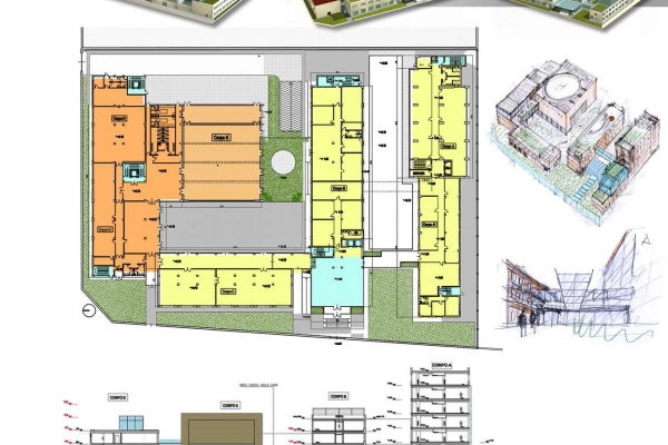
Complesso terziario e culturale Via Salomone Milano
Progetto per un complesso di circa 10.000 mq di S.L.P. da destinarsi ad uffici con un’attrezzatura teatrale ed altri ambienti, ad utilizzo anche pubblico. La posizione privilegiata, in una zona significativa per l’espansione della città, ha suggerito un’architettura d’avanguardia che valorizzerà le preesistenze caratterizzando i nuovi inserimenti.
Anni: 2007-2008
Sup area: 10.000 mq
Sup intervento: 10.000 mq
Importo lavori: € 12.000.000






